Assisted Living
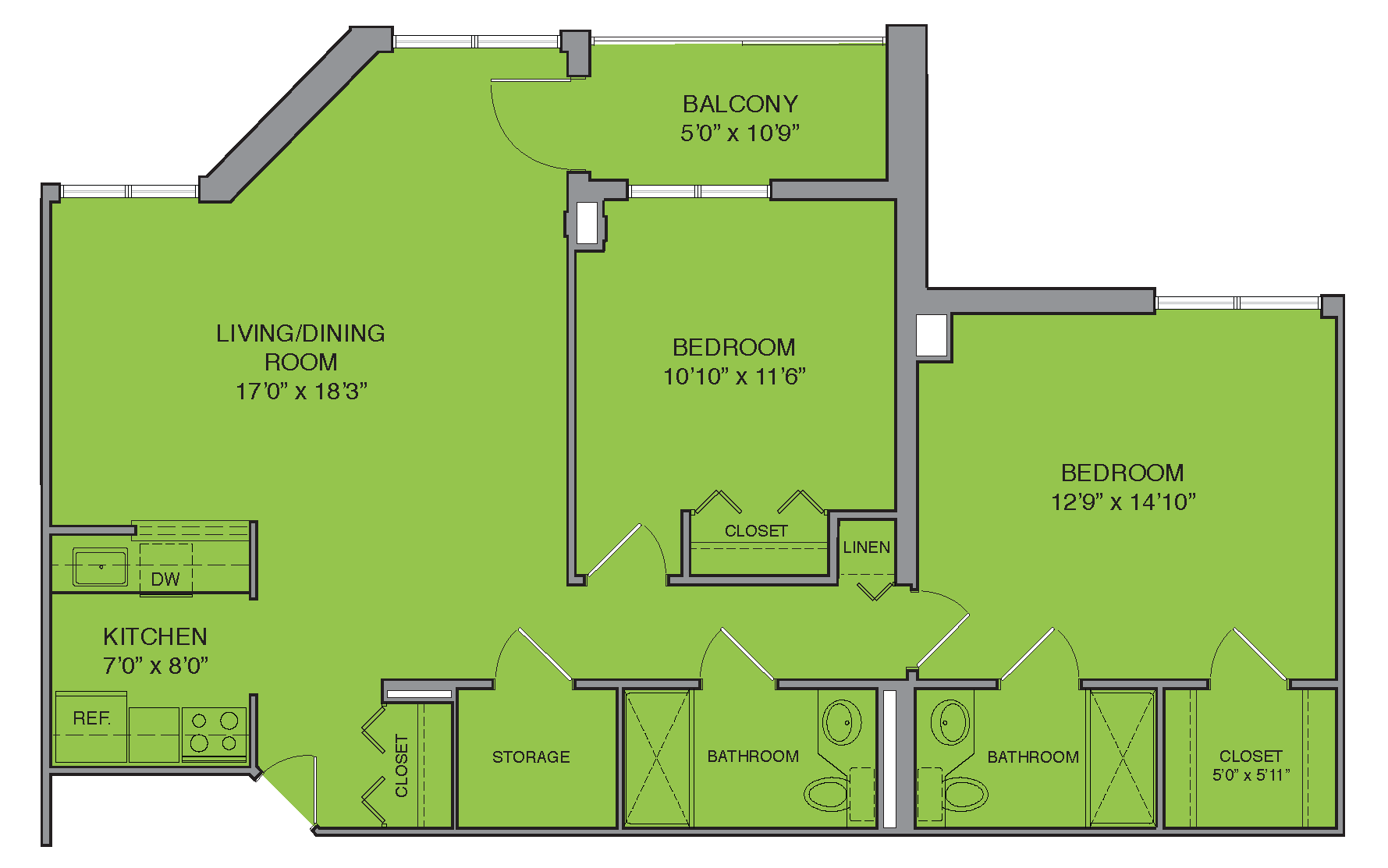
The McAuley Assisted Living Floorplans
The McAuley offers beautiful studio, one- or two-bedroom pet-friendly residences. Live your best life by selecting the floorplan that suits your style!
The McAuley Assisted Living Residences include*
- Well-appointed full-size kitchen
- 24-hour licensed care
- Three chef-prepared meals daily
- Emergency pull cord in residence
- Weekly housekeeping and linen service
- Paid utilities: electric, heat, air conditioning, water
- Interior equipment and appliance maintenance
- 24-hour concierge
- Local transportation to medical and religious appointments
Not an all-inclusive list of amenities.
     
                
     
                
     
                
     
                        